Wunderschöne Maisonettewohnung in kleiner Einheit in schöner Lage in Grünenbach, provisionsfrei.
- Kaltmiete monatlich: € 800.-
- Kaltmiete monatlich: € 800.-
Beschreibung
Objektbeschreibung
Die Wohnung befindet sich in einer 2004 in solider Massivbauweise errichteten Doppelhaushälfte in bester Wohnlage am Ortsrand einer kleinen, sympathischen Allgäuer Gemeinde.
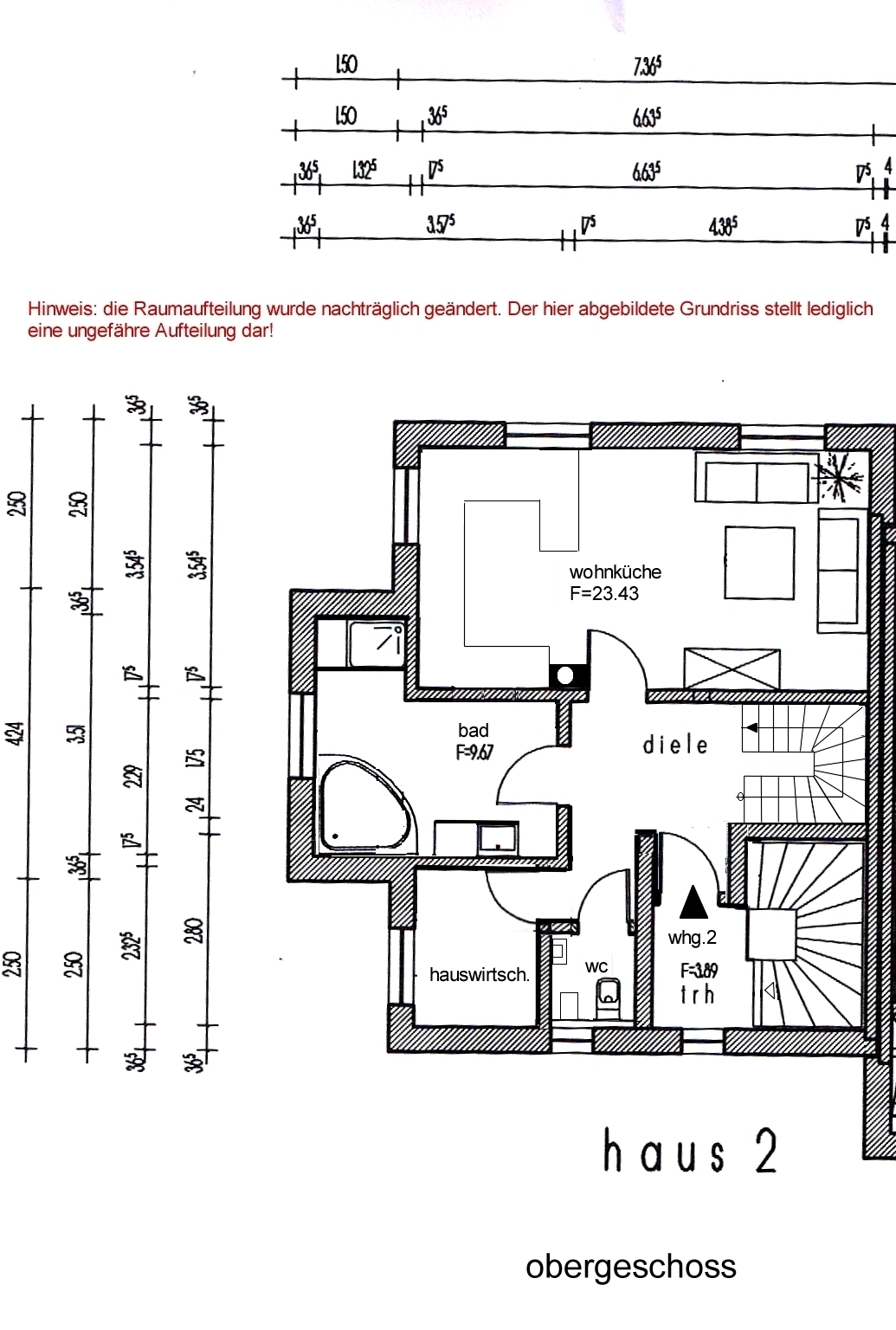
Die Wohnung verfügt über ca. 85 m² Wohnfläche und erstreckt sich über zwei Etagen
Ober- u. / Dachgeschosswohnung mit Wohnzimmer, Diele, Schlafzimmer, Wohnküche, Hauswirtschaftsraum, Bad, WC und Balkon.
Zur Wohnung gehört ein Kellerraum. Es stehen zwei PKW-Stellplätze im Freien zur Verfügung.
Monatliche Kaltmiete: € 800.-
PKW-Stellplätze im Freien: € 20.-
Monatliche Nebenkosten: € 160.-
Monatliche Warmmiete: € 980.-
Kaution: 2 Monatskaltmieten
Die Vermittlung erfolgt provisionsfrei.
Da die Wohnung über nur ein Schlafzimmer verfügt, bitten wir um Verständnis, dass sie bevorzugt an einen Haushalt mit maximal zwei Personen vermietet wird.
Tierhaltung ist in diesem Objekt leider nicht vorgesehen.
Wir freuen uns darauf, von Ihnen zu hören! Bitte senden Sie uns eine kurze E-Mail mit Ihren Kontaktdaten und ein paar Informationen zu Ihrer Person. Eine aktuelle SCHUFA-Auskunft sowie eine Selbstauskunft sind wünschenswert und helfen uns, Ihre Anfrage schnell zu bearbeiten. Vielen Dank!
Weniger anzeigen
Ausstattung
Bauweise:
KFW 60
Keller:
WU Beton mit Perimeterdämmung
Außenwände: Schallschutzziegel + WDVS Mineralwolle + Gewebespachtelung u. Edelputz
Innenwände:
Hochlochziegel verputzt mit Grundputz u. Edelputz
Decken:
Stahlbeton
Dach:
sichtbarer Dachstuhl mit Aufdachdämmung
Sonstiges
Alle Angaben basieren auf den von dritter Seite erteilten Informationen. Sie erfolgen nach bestem Wissen, jedoch ohne Gewähr für deren Richtigkeit bzw. Vollständigkeit.
Adresse
Öffnen Sie auf Google Maps-
Postleitzahl: 88167 Grünenbach
-
Land: Deutschland
Einzelheiten
Updated on April 15, 2026 at 12:17 p.m.-
Immobilien-ID 4437
-
Preis Kaltmiete monatlich: € 800.-
-
Wohnfläche 85 m²
-
Schlafzimmer 1
-
Zimmer 2,5
-
Bad 1
-
Stellplatz 1
-
Baujahr 2004
-
Art Wohnung
-
Eigenschaftenstatus Vermietet
Weitere Details
-
Kaltmiete monatlich: € 800.-
-
Nebenkosten monatlich: € 160.-
-
Stellplatz monatlich: € 20.-
-
Warmmiete monatlich: € 980.-
-
Kaution: 2 Monatskaltmieten
-
Stellplatz: PKW-Stellplatz im Freien
-
Etagen: Ober- und Dachgeschoss
-
Tierhaltung: nicht erlaubt
-
Balkon: 1
-
Provision: Provisionsfrei
-
Bezug: ab 01.06.2026
Energieklasse
-
Energieklasse: B
-
Energieausweistyp: Verbrauchsausweis
-
Gültigkeit : 22.03.2026 bis 21.03.2036
-
Energieträger: Pellets, Holz
-
Endenergieverbrauch: 58,50 kWh/(m²·a)
-
Heizungsart: Zentralheizung, Schwedenofen
- A+
- A
- Verbrauchsausweis | Energieklasse BB
- C
- D
- E
- F
- G
- H





