Attraktives Renditeobjekt im Allgäu. Gepflegtes Mehrfamilienhaus in Heimenkirch.
- €1,197,000
- €1,197,000
Beschreibung
Objektbeschreibung:
Das attraktive, im Jahr 1985 in solider Massivbauweise errichtete und vollständig unterkellerte Mehrfamilienhaus bietet eine hervorragende Gelegenheit für Kapitalanleger, die Wert auf stabile Mieteinnahmen und ein nachhaltiges Investment legen.
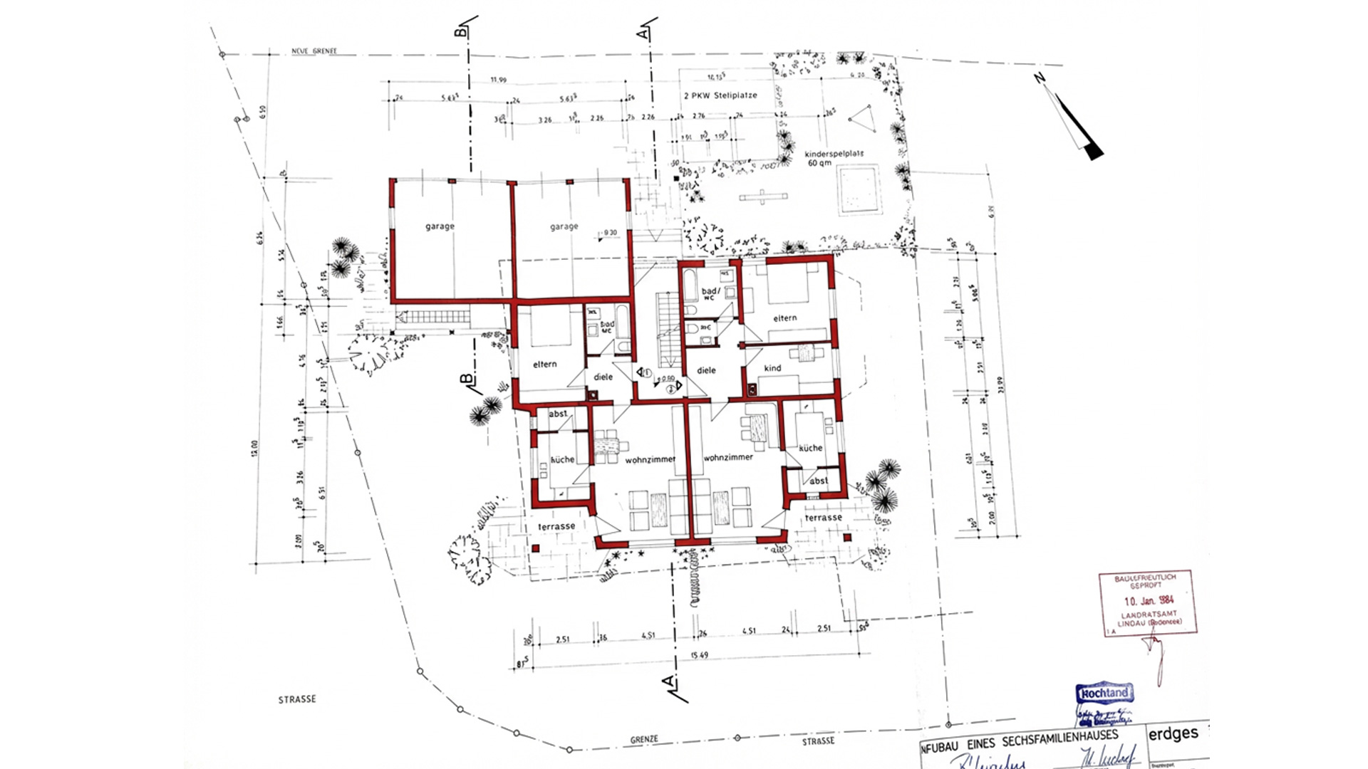
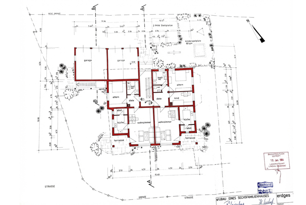
Das Objekt umfasst 6 vermietete Eigentumswohnungen mit Wohnflächen von ca. 65 m² bis ca. 87 m². Die Wohnungen überzeugen durch helle Räume, durchdachte Grundrisse und eine angenehme Wohnatmosphäre. Großzügige Terrassen oder Balkone erweitern den Wohnraum und bieten zusätzlichen Wohnkomfort. Die funktionalen Wohnungszuschnitte sprechen eine breite Mieterzielgruppe an und sorgen für eine dauerhaft gute Vermietbarkeit.
Die Wohnungen sowie die zugehörigen Garagen sind bereits gemäß Wohnungseigentumsgesetz (WEG) durch eine abgeschlossene Teilungserklärung aufgeteilt. Dadurch besteht eine hohe Flexibilität für Investoren, beispielsweise im Hinblick auf eine spätere Einzelveräußerung der Einheiten.
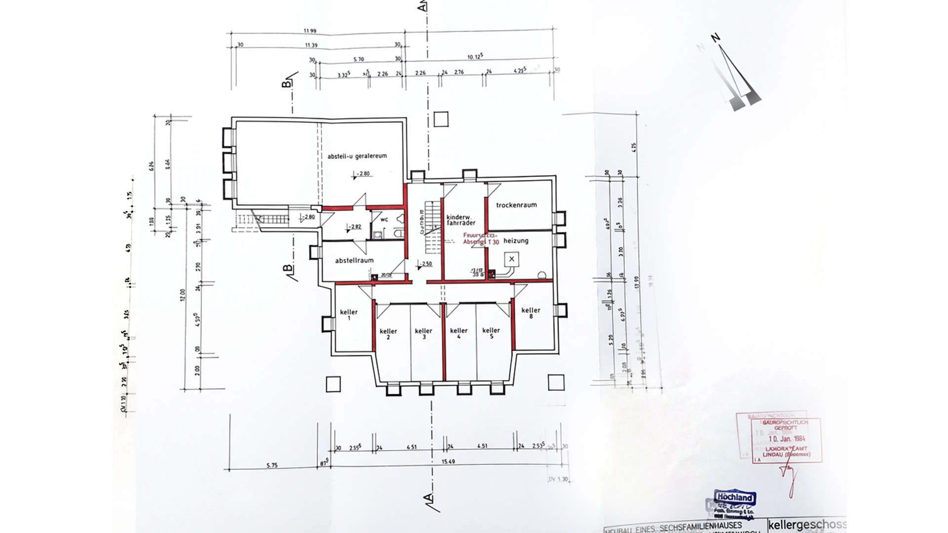
Im Untergeschoss befindet sich zusätzlich ein ehemaliger Übungsraum mit ca. 60 m², der über Tageslicht, einen separaten Zugang, Flur und WC verfügt. Ebenso steht ein Dachboden mit ca. 47 m² zur Verfügung. Eine zusätzliche Vermietung, beispielsweise als Lagerfläche, Aufenthaltsraum, Atelier oder Büro, wäre grundsätzlich denkbar und bietet weiteres Potenzial.
Auf dem Grundstück befinden sich 4 Garagen sowie ein freistehender Carport mit Platz für weitere 3 PKW-Stellplätze.
Ein besonderer Vorteil dieser Immobilie ist die langfristig gewachsene und stabile Mietstruktur. Die Wohnungen sind zuverlässig vermietet, und die bestehenden Mieter schätzen das angenehme Wohnumfeld sowie die ruhige Hausgemeinschaft. Dadurch profitieren Investoren von kontinuierlichen und gut planbaren Mieteinnahmen.
Das Mehrfamilienhaus präsentiert sich insgesamt in einem gepflegten, technisch sowie energetisch guten Zustand. Zu den bereits erfolgten Modernisierungen zählen unter anderem eine Gas-Zentralheizung aus dem Jahr 2021 sowie dreifach verglaste Fenster.
Im Untergeschoss stehen den Bewohnern 6 großzügige Kellerräume sowie alle wünschenswerten Gemeinschaftsräume zur Verfügung, darunter Fahrradraum, Trockenraum, Heizungsraum und Abstellraum.
Es besteht ein Hausmeisterservice. Schneefräse, Rasenmäher etc. vorhanden.
Bei der aktuellen Vermietung der 6 Wohneinheiten (ohne Berücksichtigung der Flächen im Unter- und Dachgeschoss) sowie der Garagen und Carport-Stellplätze ergibt sich derzeit eine Nettokaltmiete von 42.156 € pro Jahr. Gleichzeitig besteht weiteres Mietsteigerungspotenzial. Die letzte Mieterhöhung erfolgte zum 01.11.2023.
Ein solides Anlageobjekt mit nachhaltigem Vermietungspotenzial – durch die Kombination aus attraktiven Wohnungen, stabilen Mietverhältnissen und einer konstant hohen Nachfrage nach Wohnraum eignet sich diese Immobilie hervorragend als langfristige Kapitalanlage.
Solche Gelegenheiten sind selten – nutzen Sie Ihre Chance.
Lage:
Das Anwesen befindet sich in ruhiger Lage in Heimenkirch.
In der näheren Umgebung befindet sich das Rathaus, Kindergarten sowie das Verwaltungsgebäude der Großkäserei Hochland.
Eine Bushaltestelle befindet sich direkt vor dem Anwesen.
Die Marktgemeinde Heimenkirch mit ca. 3.500 Einwohnern zwischen dem Bodensee und den Alpen nur wenige Minuten von Wangen, Lindenberg und Isny entfernt bietet eine gute Infrastruktur mit Lebensmittelgeschäften, Bank, Kindergarten, Grundschule, Arzt, Apotheke, Gastronomie, Sporthalle, Tennisplatz, Fußballplatz, Freibad, etc.
Mit dem Auto erreichen Sie Heimenkirch über die B32 welche direkt durch den Ort führt. Der Heimenkircher Bahnhof befindet sich im Ortskern mit direkter Zuganbindung in Richtung Lindau am Bodensee sowie Oberstaufen (Entfernung je ca. 20 Kilometer).
Provision:
Die Provision beträgt 3,57 % inkl. der gesetzlichen Mehrwertsteuer und errechnet sich aus dem tatsächlichen Kaufpreis. Die Provision wird mit Beurkundung des Kaufvertrages fällig.
Hinweis:
Alle Angaben zu Flächen, Raumgrößen, Baujahr, Ausstattung und sonstigen Objektinformationen basieren auf Informationen Dritter und erfolgen nach bestem Wissen. Für Richtigkeit, Vollständigkeit oder Aktualität wird keine Haftung übernommen. Maßgeblich sind ausschließlich offizielle Unterlagen. Änderungen und Irrtümer bleiben vorbehalten. Interessenten sollten das Objekt vor einer Entscheidung selbst prüfen.
Adresse
Öffnen Sie auf Google Maps-
Adresse: Auf Anfrage
-
Ort: Heimenkirch
-
Postleitzahl: 88178
-
Land: Deutschland
Einzelheiten
Updated on März 29, 2026 at 11:52 a.m.-
Immobilien-ID 4434
-
Preis €1,197,000
-
Wohnfläche 440 m2
-
Grundstücksgröße 968 m²
-
Schlafzimmer 8
-
Zimmer 14
-
Badezimmer 7
-
Garagen 4
-
Baujahr 1985
-
Art Mehrfamilienhaus
-
Eigenschaftenstatus Zu verkaufen
Weitere Details
-
Zustand der Immobilie: Gepflegt
-
Provision: 3,57 % inkl. der gesetzlichen Mehrwertsteuer
Energieklasse
-
Energieklasse: C
-
Energieausweistyp: Verbrauchsausweis
-
Gültigkeit : Gültigkeit 12.09.2025 bis 11.09.2035
-
Energieträger: Erdgas
-
Endenergieverbrauch: 91,50 kWh/(m²·a)
-
Heizungsart: Zentralheizung
- A+
- A
- B
- Verbrauchsausweis | Energieklasse CC
- D
- E
- F
- G
- H



